0
Réf : 1284

Appartement Paris 1 pièce(s) 18 m2

Paris (75018)
182 000 €

A propos de ce bien

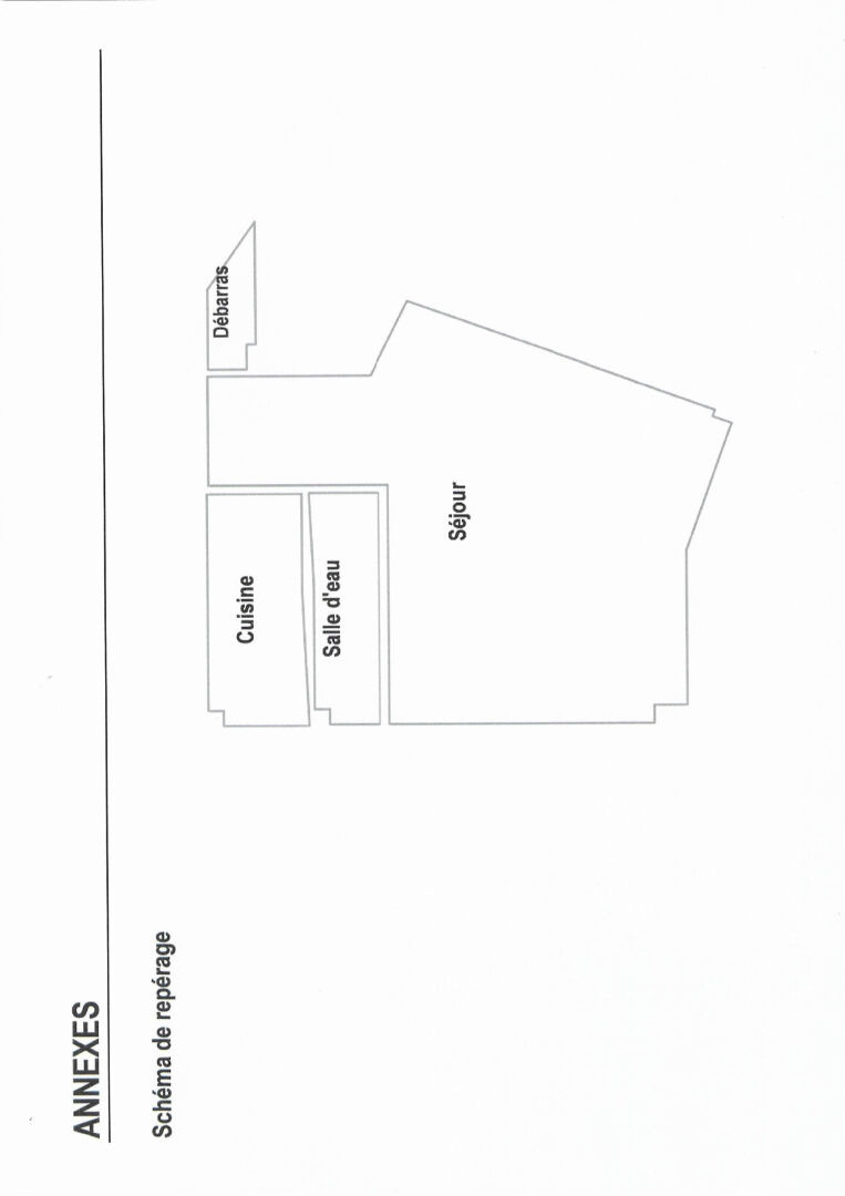
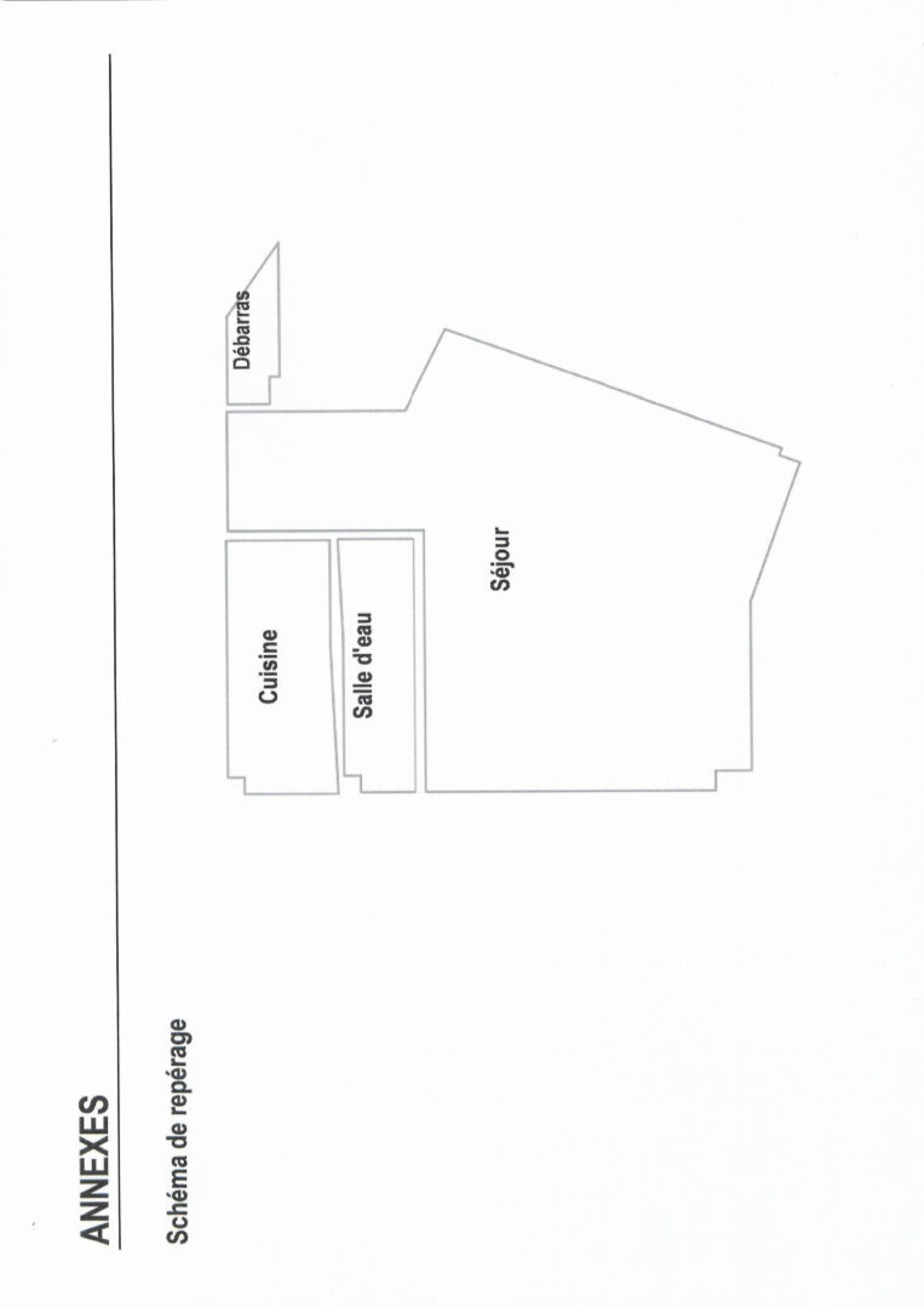
LOCATION POSSIBLE ! DPE énergie finale 388 kWh/m2/an, depuis le 1er janvier 2023, la règlementation autorise tout logement en dessous de 450 kWh/m2/an à la location. Situé rue Joseph de Maistre, dans un immeuble des année 30, au 6e et avant dernier étage avec ascenseur, un studio de plus de 18m2 comprenant une cuisine aménagée avec fenêtre, une salle d'eau avec un véritable wc ainsi que la pièce principale lumineuse avec ses 2 fenêtres. Il y a possibilité de faire une cuisine ouverte. Un débarras privé sur le palier se rajoute à ce bien. Les charges de copropriété comprennent le chauffage, l'eau chaude et froide, l'ascenseur ainsi qu'une gardienne. Contactez-nous pour le visiter !

Descriptif du bien

TRAD_PAMPERO_Caracteristique Valeurs
Code postal 75018
Surface habitable (m²) 18 m²
Surface loi Carrez (m²) 18,16 m²
Nombre de chambre(s) 1
Nombre de pièces 1
Etage 6
Ascenseur OUI
TRAD_PAMPERO_Caracteristique Valeurs
Nb de salle d'eau 1
Cuisine Aménagée
Mode de chauffage Gaz
Type de chauffage Radiateur
Format de chauffage Collectif
Année de construction 1930
TRAD_PAMPERO_Caracteristique Valeurs
Copropriété OUI
nombre de lots 47
Quote Part annuelle des charges 748 €
statut du syndic pas de procédure en cours
TRAD_PAMPERO_Caracteristique Valeurs
Prix de vente honoraires TTC inclus 182 000 €
Prix de vente honoraires TTC exclus 170 000 €
Honoraires TTC à la charge acquéreur 6,59%
Taxe foncière annuelle 200 €
DPE GES
  • Commerces et santé
  • Loisirs
  • Ecoles
  • Transports
  • Pratique
Ce bien vous intéresse ?
Fieldset par défaut
Fieldset par défaut
Validation

* Champs obligatoires

Contacter l'agence
Validation
Les informations recueillies sur ce formulaire sont enregistrées dans un fichier informatisé par La Boite Immo agissant comme Sous-traitant du traitement pour la gestion de la clientèle/prospects de l'Agence / du Réseau qui reste Responsable du Traitement de vos Données personnelles. La base légale du traitement repose sur l'intérêt légitime de l'Agence / du Réseau. Elles sont conservées jusqu'à demande de suppression et sont destinées à l'Agence / au Réseau. Conformément à la loi « informatique et libertés », vous disposez des droits d’accès, de rectification, d’effacement, d’opposition, de limitation et de portabilité de vos données. Vous pouvez retirer votre consentement à tout moment en contactant directement l’Agence / Le Réseau. Consultez le site https://cnil.fr/fr pour plus d’informations sur vos droits. Si vous estimez, après avoir contacté l'Agence / le Réseau, que vos droits « Informatique et Libertés » ne sont pas respectés, vous pouvez adresser une réclamation à la CNIL. Nous vous informons de l’existence de la liste d'opposition au démarchage téléphonique « Bloctel », sur laquelle vous pouvez vous inscrire ici : https://www.bloctel.gouv.fr Dans le cadre de la protection des Données personnelles, nous vous invitons à ne pas inscrire de Données sensibles dans le champ de saisie libre.
Ce site est protégé par reCAPTCHA, les Politiques de Confidentialité et les Conditions d'Utilisation de Google s'appliquent.