0
Réf : 1332
Exclusif

Appartement Paris 3 pièce(s) 44.5 m2

Paris (75018)
420 000 €

A propos de ce bien

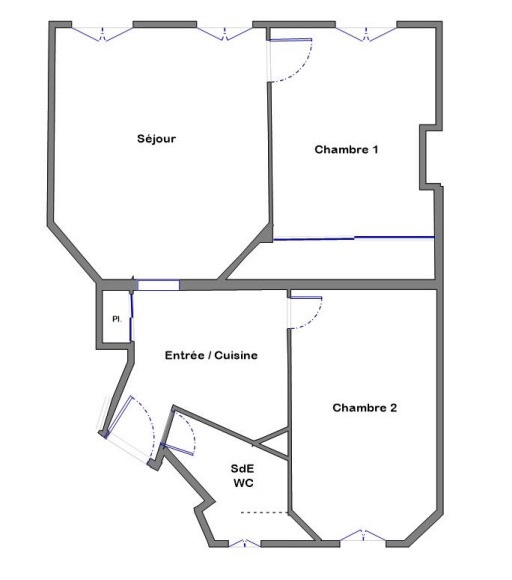
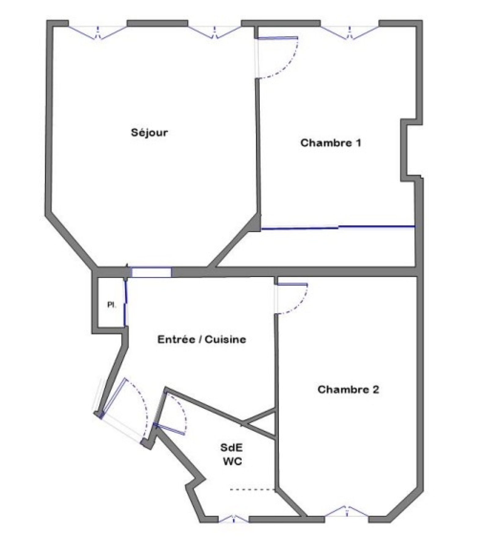
Rue Fauvet - au 3e étage avec ascenseur d'un bel immeuble pierre de Paris. Un lumineux appartement de 44,5m2 comprenant une entrée, une cuisine, un séjour côté rue avec 2 fenêtres, parquet en pointe de Hongrie, moulures et cheminée, une grande chambre avec des rangements et une petite chambre côté cours ainsi qu'une salle d'eau avec toilette. Possibilité d'en faire un grand 2 pièces ! DPE E La copropriété est très bien entretenue , le ravalement a été fait il y a 2 ans, celui de la cours a été voté et payé, des rails pour vélo vont être installer dans cours. Contactez-nous pour le visiter.

Descriptif du bien

TRAD_PAMPERO_Caracteristique Valeurs
Code postal 75018
Surface habitable (m²) 44,50 m²
Surface loi Carrez (m²) 44,50 m²
Nombre de chambre(s) 2
Nombre de pièces 3
Etage 3
Ascenseur OUI
TRAD_PAMPERO_Caracteristique Valeurs
Mode de chauffage Electrique
Type de chauffage Radiateur
Format de chauffage Individuel
Interphone OUI
Exposition Est
Année de construction 1900
TRAD_PAMPERO_Caracteristique Valeurs
Copropriété OUI
nombre de lots 26
Quote Part annuelle des charges 1 976 €
statut du syndic pas de procédure en cours
TRAD_PAMPERO_Caracteristique Valeurs
Prix de vente honoraires TTC inclus 420 000 €
Prix de vente honoraires TTC exclus 406 000 €
Honoraires TTC à la charge acquéreur 3,33%
Taxe foncière annuelle 514 €
DPE GES
  • Commerces et santé
  • Loisirs
  • Ecoles
  • Transports
  • Pratique
Ce bien vous intéresse ?
Fieldset par défaut
Fieldset par défaut
Validation

* Champs obligatoires

Contacter l'agence
Validation
Les informations recueillies sur ce formulaire sont enregistrées dans un fichier informatisé par La Boite Immo agissant comme Sous-traitant du traitement pour la gestion de la clientèle/prospects de l'Agence / du Réseau qui reste Responsable du Traitement de vos Données personnelles. La base légale du traitement repose sur l'intérêt légitime de l'Agence / du Réseau. Elles sont conservées jusqu'à demande de suppression et sont destinées à l'Agence / au Réseau. Conformément à la loi « informatique et libertés », vous disposez des droits d’accès, de rectification, d’effacement, d’opposition, de limitation et de portabilité de vos données. Vous pouvez retirer votre consentement à tout moment en contactant directement l’Agence / Le Réseau. Consultez le site https://cnil.fr/fr pour plus d’informations sur vos droits. Si vous estimez, après avoir contacté l'Agence / le Réseau, que vos droits « Informatique et Libertés » ne sont pas respectés, vous pouvez adresser une réclamation à la CNIL. Nous vous informons de l’existence de la liste d'opposition au démarchage téléphonique « Bloctel », sur laquelle vous pouvez vous inscrire ici : https://www.bloctel.gouv.fr Dans le cadre de la protection des Données personnelles, nous vous invitons à ne pas inscrire de Données sensibles dans le champ de saisie libre.
Ce site est protégé par reCAPTCHA, les Politiques de Confidentialité et les Conditions d'Utilisation de Google s'appliquent.