0
Réf : 1186

Drancy - Appartement à rénover avec jouissance d'un terrain

Drancy (93700)
105 000 €

A propos de ce bien

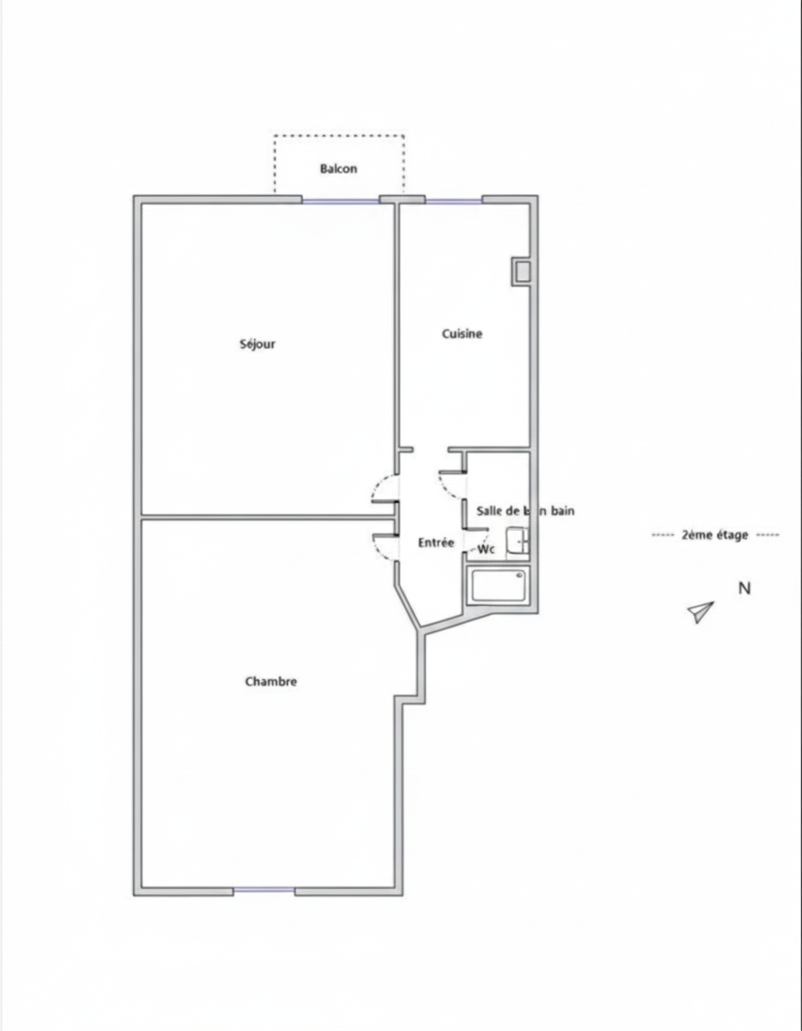
Avenue Garibaldi, au 2 ème et dernier étage sans ascenseur d'un petit immeuble, appartement de type t2 à rénover entièrement. Cet appartement traversant vous offre une entrée, un séjour, une cuisine (possibilité US), un balcon, une chambre et une salle d'eau avec WC.

Au rez de chaussée, dans la cour de l'immeuble, droit de jouissance exclusive d'une partie de terrain de 50 m2, partiellement construite. 

Contact : Jeanne Alfort 06 83 82 24 56 


Les informations sur les risques auxquels ce bien est exposé sont disponibles sur le site Géorisques

Descriptif du bien

TRAD_PAMPERO_Caracteristique Valeurs
Code postal 93700
Surface habitable (m²) 35,13 m²
surface terrain 50 m²
Nombre de chambre(s) 1
Nombre de pièces 2
Etage 2
Nombre de niveaux 1
Ascenseur NON
Vue Dégagée
TRAD_PAMPERO_Caracteristique Valeurs
Nb de salle de bains 1
Interphone NON
Visiophone NON
Balcon OUI
Terrasse NON
Cave OUI
Exposition Est-Ouest
Année de construction 1800
TRAD_PAMPERO_Caracteristique Valeurs
Copropriété OUI
Lot n° 3
nombre de lots 16
Quote Part annuelle des charges 600 €
plan de sauvegarde NON
TRAD_PAMPERO_Caracteristique Valeurs
Prix de vente honoraires TTC inclus 105 000 €
DPE GES
  • Commerces et santé
  • Loisirs
  • Ecoles
  • Transports
  • Pratique
Ce bien vous intéresse ?
Fieldset par défaut
Fieldset par défaut
Validation

* Champs obligatoires

Contacter l'agence
Validation
Les informations recueillies sur ce formulaire sont enregistrées dans un fichier informatisé par La Boite Immo agissant comme Sous-traitant du traitement pour la gestion de la clientèle/prospects de l'Agence / du Réseau qui reste Responsable du Traitement de vos Données personnelles. La base légale du traitement repose sur l'intérêt légitime de l'Agence / du Réseau. Elles sont conservées jusqu'à demande de suppression et sont destinées à l'Agence / au Réseau. Conformément à la loi « informatique et libertés », vous disposez des droits d’accès, de rectification, d’effacement, d’opposition, de limitation et de portabilité de vos données. Vous pouvez retirer votre consentement à tout moment en contactant directement l’Agence / Le Réseau. Consultez le site https://cnil.fr/fr pour plus d’informations sur vos droits. Si vous estimez, après avoir contacté l'Agence / le Réseau, que vos droits « Informatique et Libertés » ne sont pas respectés, vous pouvez adresser une réclamation à la CNIL. Nous vous informons de l’existence de la liste d'opposition au démarchage téléphonique « Bloctel », sur laquelle vous pouvez vous inscrire ici : https://www.bloctel.gouv.fr Dans le cadre de la protection des Données personnelles, nous vous invitons à ne pas inscrire de Données sensibles dans le champ de saisie libre.
Ce site est protégé par reCAPTCHA, les Politiques de Confidentialité et les Conditions d'Utilisation de Google s'appliquent.