0
Réf : 1359
Exclusif

2 Pieces avec Balcon Rue Duhesme

Paris (75018)
378 000 €

A propos de ce bien

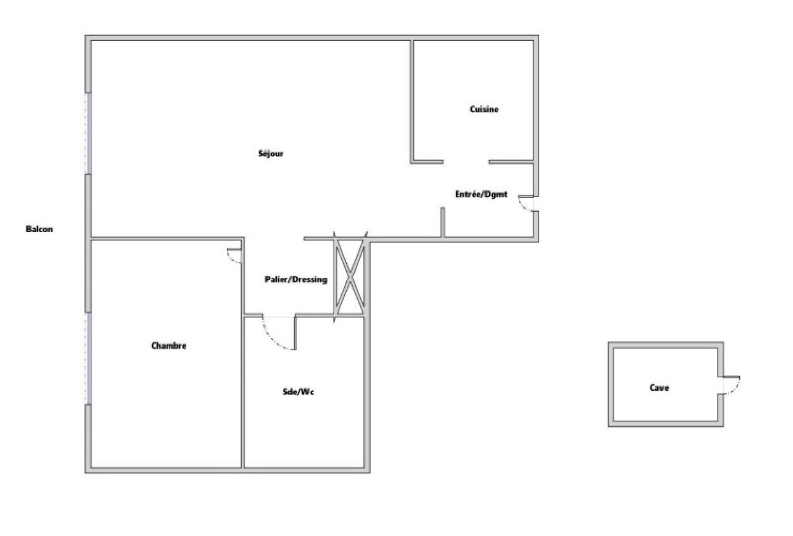
Rue Duhesme au coeur des commerces de le rue du Poteau. Un appartement de 2 pièces situé au 4e étage avec ascenseur. Il se compose : D'une entrée, une cuisine ouverte, un séjour donnant sur balcon, une salle d'eau, une grande chambre donnant sur balcon et quelques placards de rangement. Le tout avec une cave et un local à vélo.

Descriptif du bien

TRAD_PAMPERO_Caracteristique Valeurs
Code postal 75018
Surface habitable (m²) 44 m²
Surface loi Carrez (m²) 41,85 m²
Nombre de chambre(s) 1
Nombre de pièces 2
Etage 4
Ascenseur OUI
TRAD_PAMPERO_Caracteristique Valeurs
Mode de chauffage Fioul
Type de chauffage Autre
Format de chauffage Collectif
Interphone OUI
Balcon OUI
Cave OUI
Année de construction 1967
TRAD_PAMPERO_Caracteristique Valeurs
Copropriété OUI
nombre de lots 120
Quote Part annuelle des charges 2 580 €
statut du syndic pas de procédure en cours
TRAD_PAMPERO_Caracteristique Valeurs
Prix de vente 378 000 €
Les honoraires d'agence seront intégralement à la charge du vendeur  
Taxe foncière annuelle 705 €
DPE GES
  • Commerces et santé
  • Loisirs
  • Ecoles
  • Transports
  • Pratique
Ce bien vous intéresse ?
Fieldset par défaut
Fieldset par défaut
Validation

* Champs obligatoires

Contacter l'agence
Validation
Les informations recueillies sur ce formulaire sont enregistrées dans un fichier informatisé par La Boite Immo agissant comme Sous-traitant du traitement pour la gestion de la clientèle/prospects de l'Agence / du Réseau qui reste Responsable du Traitement de vos Données personnelles. La base légale du traitement repose sur l'intérêt légitime de l'Agence / du Réseau. Elles sont conservées jusqu'à demande de suppression et sont destinées à l'Agence / au Réseau. Conformément à la loi « informatique et libertés », vous disposez des droits d’accès, de rectification, d’effacement, d’opposition, de limitation et de portabilité de vos données. Vous pouvez retirer votre consentement à tout moment en contactant directement l’Agence / Le Réseau. Consultez le site https://cnil.fr/fr pour plus d’informations sur vos droits. Si vous estimez, après avoir contacté l'Agence / le Réseau, que vos droits « Informatique et Libertés » ne sont pas respectés, vous pouvez adresser une réclamation à la CNIL. Nous vous informons de l’existence de la liste d'opposition au démarchage téléphonique « Bloctel », sur laquelle vous pouvez vous inscrire ici : https://www.bloctel.gouv.fr Dans le cadre de la protection des Données personnelles, nous vous invitons à ne pas inscrire de Données sensibles dans le champ de saisie libre.
Ce site est protégé par reCAPTCHA, les Politiques de Confidentialité et les Conditions d'Utilisation de Google s'appliquent.